Storstrømsparken 42
548.095 kr.
Åbent hus med tilmelding 11. dec. 10:00 - 16:00


Andel i Storstrømsparken
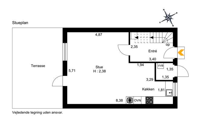
Skulle Storstrømsparken bygges i dag, ville det være umuligt med dens placering så tæt på det vandet og stranden. Få skridt til vandkanten og den dejligste badestrand Kort afstand til skoler, indkøb og resten af byen.Boligen er gennemført indrettet i 2 plan med tilhørende flisebelagt have mod vandet. Herligheden er jo ganske enkelt genialt til hele livet! God til par-livet, også med plads til ungerne og perfekt til den 3. alder. Hvad mere kan man forlange af sin bolig? Entré med god plads til overtøjet, åbent køkken/alrum til stuen med udgang til terrassen. Trappe til 1.sal hvor der er plads til hele 3 fine værelser samt badeværelse med brus.
Til boligen hører der vaskerum/skur lige til venstre for hoveddøren. A/B Storstrømsparken Afd. 2 er en velorganiseret og yderst økonomisk velfunderet forening, der tilbyder godt naboskab, socialt samvær og præsentable fællesområder.
Boligen opvarmes med fjernvarme. Bemærk de lave anvendelsesudgifter!
EDC Vordingborg fremviser alle ugens dage, bestil en fremvisning allerede nu, så hjælper vi dig med at opfylde netop dine andelsbolig-drømme!
Når du køber en andelsbolig gennem EDC, har du mulighed for at få en gratis flytteforsikring. Ønsker du denne, skal du sende en mail med "Ja tak" til flytteforsikring@gjensidige.dk
Fakta om Vordingborg (45.057 indbyggere)
- Kommuneskat
- 26,3%
- Landsgennemsnit
- 25,4%
- Grundskyldspromille
- 13,5
- Landsgennemsnit
- 10,192
Pasningstakster
- Vuggestue 0-2 år
- 3.376 kr./md.
- Dagpleje 0-2 år
- 3.271 kr./md.
- Børnehave 3-5 år
- 2.302 kr./md.
- Antal folkeskoler
- 6
- Gns. klassekvotient
- 20,7
- Sagsnr.
- 47606245
- Boligareal
- 94 m²
- Rum/værelser
- 4/3
- Antal etager
- 1
- Byggeår
- 1991
- Energimærke
- B
- Ejerudgifter pr. md.
- 5.719 kr.
- Forbrugsafhængig forhold
- 1.508 kr.
- Teknisk pris
- 797.665 kr.
- Prisudvikling
- 0,00 %
- Altan/terrasse
- Nej
- Elevator
- Nej
- Liggetid
- 79 dage
Oplysninger

National boligmæglervirksomhed med lokalt kendskab
Vi er Danmarks største mæglervirksomhed og kender både lokale og nationale markedsforhold. Derfor kan jeg hjælpe dig med at realisere dine boligdrømme. Kontakt mig for en uforpligtende snak.

