Grønnegade 4
Solgt


Flot og charmerende moderniseret byhus med 3 værelser – Beliggende i Rønnes Gamle bydel!
Rønnes gamle bydel rummer alle de ting, der forbindes med smukt og historisk byggeri samt hyggelige omgivelser med de traditionelle brostensbelagte gader, gadebelysning i retrostil og kort afstand til byens centrum, indkøbsmuligheder, havnen og busforbindelser.Huset er et rummeligt og herskabeligt rækkehus med særdeles rummelig indretning. Igennem de senere år har næsten hele huset gennemgået en omfattende renovering, med stor respekt for husets historie og oprindelige stil. I dag fremtræder det således som en lys og moderne bolig, klar til at tage imod nye ejere. Blandt andet har moderniseringen bestået af etablering af gulvvarme i stueetage (dog ikke i bad), delvis efterisolering af ydervægge, montering af nye døre og renovering af vinduer de fleste steder samt nye el- og VVS-installationer. Senest har gårdhaven og vaskehuset fået en tur, med bl.a. ny terrasse af Douglasplanker, ny flisebelægning, med ny kloakering under fliserne, ligesom nuværende ejer også har udskiftet de to vinduer i husets gavl.
Til huset hører et indgangsparti med smuk granittrappe til gaden samt en helt ugeneret og meget hyggelig gårdhave med terrasse areal, stenbelægning, plads til blomsterbede og mulighed for grill og udeliv i de varme måneder.
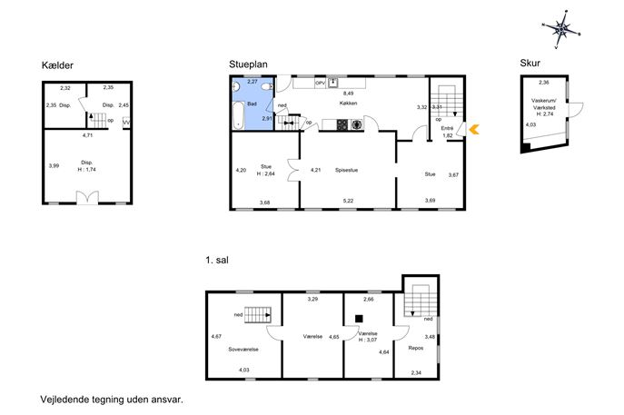
Huset indeholder følgende: Hovedentré med smukt gulv i sildebensmønster og trappe til 1. sal. Tre stuer en suite med højt til loftet - den ene kan man lave til et ekstra soveværelse. Stort og dejligt køkken/alrum fra 2017 med marmorbordplade, plads til spisebord samt terrassedør til gårdhaven. Godt badeværelse i retrostil med kar, håndvask og toilet.
1. sal, som er indrettet med loft til kip, indeholder: Stort soveværelse med trappe til køkken. Stort garderoberum/gennemgangsværelse. Værelse, med adgang til ovennævnte og repos. Repos/forrum/kontor.
Kælder indeholder: Trapperum med fjernvarmeunit. Disponibelt rum. Depotrum med udgang til gaden.
Herudover forefindes: Muret udhus med værksted og montage for vaskemaskine.
Et indflytningsklart, og flot istandsat byhus som er klar til nye ejere. Velkommen.
Fakta om Bornholm (38.966 indbyggere)
- Kommuneskat
- 26,2%
- Landsgennemsnit
- 25,4%
- Grundskyldspromille
- 10,7
- Landsgennemsnit
- 10,192
Pasningstakster
- Vuggestue 0-2 år
- 3.390 kr./md.
- Dagpleje 0-2 år
- 2.842 kr./md.
- Børnehave 3-5 år
- 2.116 kr./md.
- Antal folkeskoler
- 7
- Gns. klassekvotient
- 17,5
- Sagsnr.
- 37106498
- Boligareal
- 177 m²
- Kælder
- 31 m²
- Vægtet areal
- 186 m²
- Rum/værelser
- 6/3
- Grundareal
- 212 m²
- Antal etager
- 1
- Byggeår
- 1863
- Energimærke
- C
- Liggetid
- 16 dage
Oplysninger

En bolighandel er ikke bare en bolighandel
En bolig er mere end mursten og kvadratmeter. Det er rammen om livets største øjeblikke. Min opgave er at skabe tryghed i processen, se mulighederne, og sikre at hver eneste beslutning bringer dig tættere på det hjem, der føles rigtigt.

