
Enghaven 146990 Ulfborg
Villa
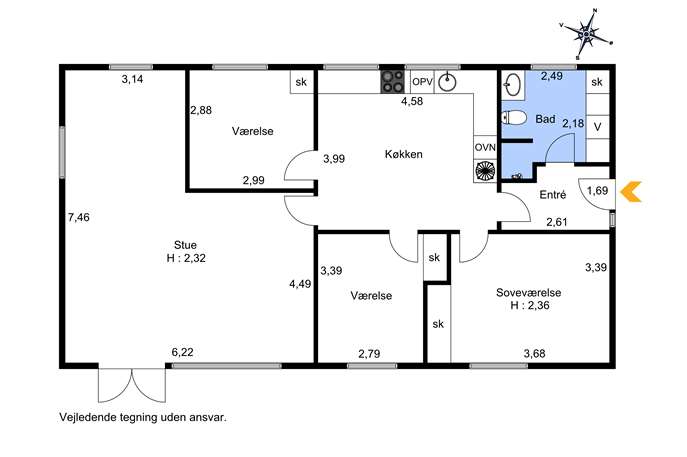
rum4/3 rum
m²112 m²
D



Har du spørgsmål om boligen eller ønsker du at komme forbi til en uforpligtende snak? Så kontakt os her

Har du spørgsmål om boligen eller ønsker du at komme forbi til en uforpligtende snak? Så kontakt os her
