
Fremvisning
Book en fremvisning
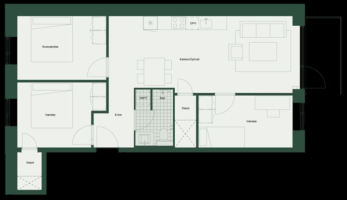
Gartnertorvet 5 4 tv5200 Odense V
Lejlighed
rum4/3 rum
m²98 m²
Ledig fra d. 1. sep. 2025
10.737 kr./md.



Ledig fra d. 1. sep. 2025
Har du spørgsmål om boligen eller ønsker du at komme forbi til en uforpligtende snak? Så kontakt os her

Har du spørgsmål om boligen eller ønsker du at komme forbi til en uforpligtende snak? Så kontakt os her
