Præstevænget 40, Kølkær
Solgt

Unik ejendom i naturskønne omgivelser
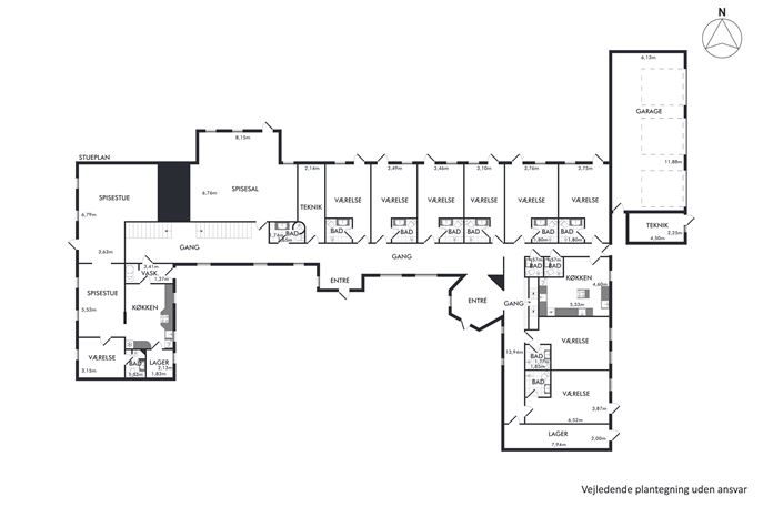
Velkommen til en helt særlig ejendom i udkanten af Kølkær. Denne tidligere imponerende bed & breakfast og kursusejendom byder på et væld af muligheder, uanset om drømmen er erhvervsmæssig eller privat.Ejendommen, oprindeligt opført i 1914, har fået to gennemførte tilbygninger i henholdsvis 2003 og 2008, der harmonisk integrerer herregårdsstilens elegance med moderne komfort. Den grundmurede konstruktion sikrer både soliditet og lang levetid.
Den private beboelse strækker sig over rummelige 208 m² og indbyder til afslappende ophold med udsigt over naturen. Til erhverv eller kreative projekter findes hele 790 m² erhvervsareal, der er oplagt til kursusaktiviteter, events eller overnatning.
Denne ejendom er en sjælden mulighed for dig, der ønsker et sted med plads til både store ambitioner og privatliv i en ramme, der emmer af atmosfære og kvalitet.
Sælger vil forinden salg udbedre skader på murværket, skifte vinduer i den gamle del, samt færdiggøre renovering af bl.a. lofter i det gamle stuehus.
Ejendommen er registreret med landbrugspligt.
Afstand til
- Kølkær/Hammerumvej (Herning Kom)760 m
- 15 - Herningmotorvejen7,9 km
- Adresse
- Præstevænget 40, Kølkær
- Sagsnr.
- 709007206
- Ejendomstype
- Blandet ejendom
- Handelstype
- Brugerejendom
- Etageareal
- 998 m²
Nøgletal
- Grundareal
- 32.259 m²
- Bebygget
- 686 m²
- Boligareal
- 208 m²
- Erhvervsareal
- 790 m²
- Etageareal
- 998 m²
Arealer
- Ejendomsskatter
- 1.217 kr.
- Grundskyld
- 5.164 kr.
- Forsikringspræmie
- 14.970 kr.
- Vurderingsår
- 2020
- Ejendomsværdi
- 5.250.000 kr.
- Grundværdi
- 311.600 kr.
Økonomi
- Byggeår / Ombygget
- 1914 / 2003
- Omfattet af energimærke
- Ja
- Energimærke
- C
Ejendommen


Michael Fænø
Partner, Erhverv, HD-FR, MDE, DiplomValuar

