Østergade 36A
995.000 kr.

Spændende gågadeejendom med flere muligheder
• Gågadeejendom i Hjørring• Oplagt til egen virksomhed med tilhørende lejeindtægt fra udlejede boliger
• Godt beliggende foran Metropol Shoppingcenter
• Facade til Østergade
• Attraktiv pris
Østergade 36A er en mindre, blandet ejendom, med facade til Hjørrings mest besøgte gågade, Østergade.
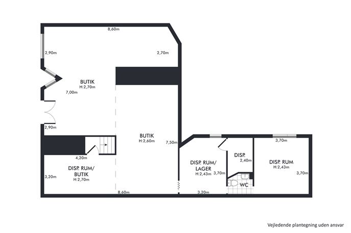
Ejendommen består jf. plantegningen af et erhvervslejemål i stueplan. Køber overtager denne del vakant - og arealet kan således anvendes til købers egen forretning. Alternativt udlejet. Der er endvidere 60 m2 kælder. Gården kan tilgås fra Østergade.
Derudover omfatter ejendommen 2 stk. udlejede boliger på henholdsvis 60 og 78 m2.
Facaderne fremstår i hvidmalede mursten med store butiksvinduer til gågaden. Taget er et sadeltag med kviste til gaden og en enkelt mod syd. Generelt trænger ejendommen til istandsættelse, idet taget dog fremstår pænt.
Ejendommen er forsynet med fjernvarme.
Lejekontrakter mv. kan rekvireres ved henvendelse til EDC Erhverv Poul Erik Bech.
Faciliteter
- GårdmiljøJa
- KøkkenfaciliteterJa
- ToiletterJa
- VinduestypeBlandet
Afstand til
- Bispestaven (Hjørring Kommune)285 m
- Hjørring St.720 m
- E 39 - Hirtshalsmotorvejen4,1 km
- Adresse
- Østergade 36A
- Sagsnr.
- 914004631
- Ejendomstype
- Blandet ejendom
- Handelstype
- Investering
- Pris
- 995.000 kr.
- Etageareal
- 303 m²
Nøgletal
- Grundareal
- 236 m²
- Bebygget
- 148 m²
- Erhvervsareal
- 165 m²
- Butiksareal
- 138 m²
- Etageareal
- 303 m²
Arealer
- Pris
- 995.000 kr.
- Pris/m²
- 3.284 kr.
- Afskrivningsberettiget
- Ja
- Momsregistreret
- Nej
Økonomi
- Byggeår / Ombygget
- 1895
- Omfattet af energimærke
- Ja
- Energimærke
- E
Ejendommen

Michael Stilling
MRICS Registered Valuer, Partner, ejendomsmægler & DiplomValuar, MDE

Anders Bjørn Jensen
Erhvervsmægler, MDE, Erhverv Vendsyssel

