
Fremvisning
Book en fremvisning
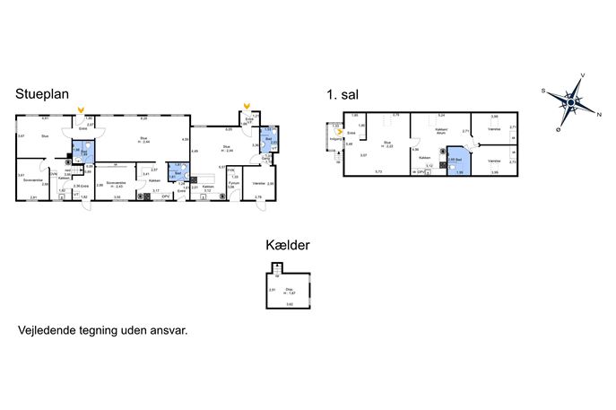
Horsensvej 758660 Skanderborg
Boligudlejningsejendom
tradeTypeInvestering
m²280 m²
D
1.800.000 kr.



Har du spørgsmål om ejendommen eller ønsker du at komme forbi til en uforpligtende snak? Så kontakt os her

Har du spørgsmål om ejendommen eller ønsker du at komme forbi til en uforpligtende snak? Så kontakt os her
