Fremvisning
Book en fremvisning

Gammel Kongevej 148 ST TH1850 Frederiksberg C

Detail

Investering
394 m²
C
7.000.000 kr.

Adresse
Gammel Kongevej 148 ST TH
Sagsnr.
184000569
Ejendomstype
Detail
Handelstype
Investering
Pris
7.000.000 kr.
Afkast
6,56 %
Etageareal
394 m²
Kælder
301 m²

Arealer

Erhvervsareal
394 m²
Butiksareal
93 m²
Etageareal
394 m²
Kælder
301 m²

Nøgletal

Pris
7.000.000 kr.
Pris/m²
17.767 kr.
Lejefaktor
13.77
Lejeindtægt
508.300 kr.
Årlig lejeindtægt pr m²
1.290 kr.
Årlige driftsudgifter
49.198 kr.
Årlige driftsudgifter pr m²
125 kr.
Afkast
6,56 %
Afskrivningsberettiget
Nej
Momsregistreret
Nej

Ejendommen

Forsikringen omfatter:
Brand, Bygning, Udvidet rørskade, Svamp/Insekt
Byggeår / Ombygget
1905
Omfattet af energimærke
Ja
Energimærke
C

Faciliteter

Køkkenfaciliteter
Ja
Toiletter
Ja

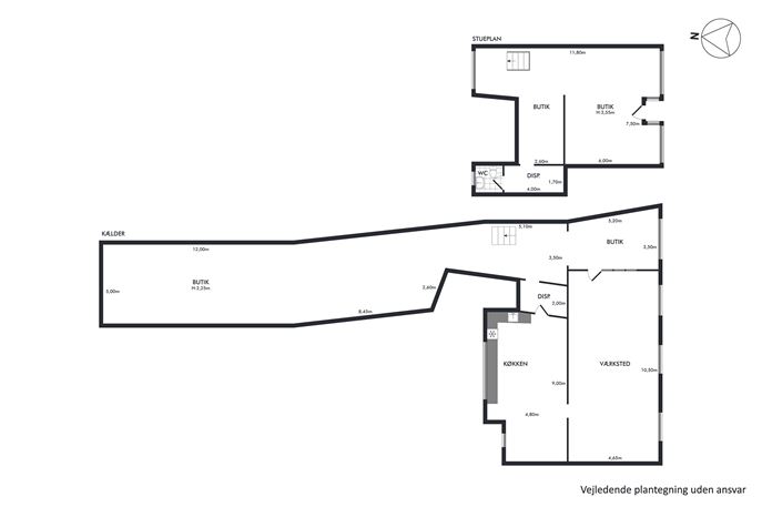
Velbeliggende in­ve­ste­rings­ejen­dom på Gammel Kongevej

• 394 m² samlet erhvervsareal (93 m² detail + 301 m² kælder)
• Attraktiv beliggenhed på Gammel Kongevej
• Solid og overskuelig in­ve­ste­rings­ca­se
• God eksponering mod gaden
• Investering i klassisk og veldisponeret ejendom

Attraktiv er­hvervs­lej­lig­hed beliggende på Gammel Kongevej, en af Frederiksbergs mest velbesøgte handelsgader med høj synlighed og stabil kundestrøm. Lejemålet er placeret i en klassisk ejendom fra 1905 og består af 93 m² detailareal i stueplan samt 301 m² kælder, i alt 394 m² erhvervsareal.

Ejendommen er fuldt udlejet og genererer en samlet årlig erhvervsleje på kr. 508.300, svarende til en gennemsnitlig leje på kr. 1.290 pr. m². Lejen er sammensat af højtforrentet detailareal mod gaden og sekundære kælderarealer, hvilket giver en effektiv og robust lejestruktur. De samlede årlige driftsudgifter udgør kr. 49.198, hvilket resulterer i et driftsresultat på kr. 459.102.

Lejemålet fremstår som en solid og overskuelig in­ve­ste­rings­ca­se med central beliggenhed og stabil indtjening.

Vil du vide mere om ejendommen?

Har du spørgsmål om ejendommen eller ønsker du at komme forbi til en uforpligtende snak? Så kontakt os her

Besøg butikken