
Fremvisning
Book en fremvisning
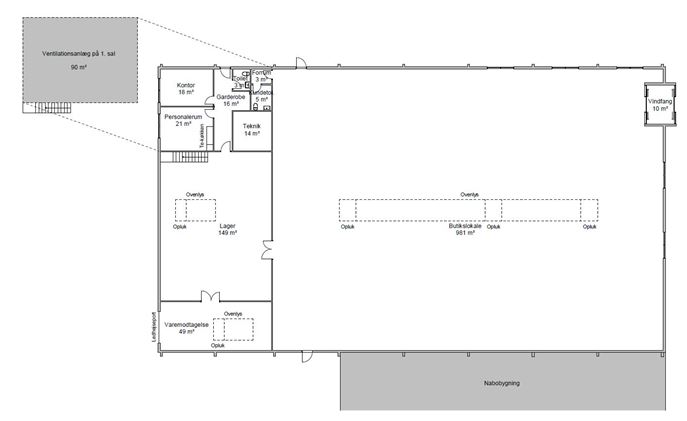
Thurøvej 11A9500 Hobro
Detail
tradeTypeBrugerejendom
m²1.305 m²
C
4.500.000 kr.



Har du spørgsmål om ejendommen eller ønsker du at komme forbi til en uforpligtende snak? Så kontakt os her


Har du spørgsmål om ejendommen eller ønsker du at komme forbi til en uforpligtende snak? Så kontakt os her

