
Fremvisning
Book en fremvisning
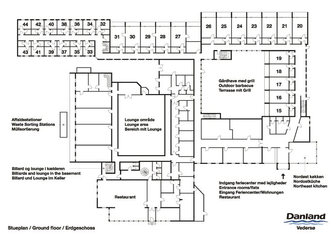
Vedersø Klitvej 596990 Ulfborg
Hotel og Restaurant
tradeTypeBrugerejendom
m²4.769 m²
C
24.750.000 kr.



Har du spørgsmål om ejendommen eller ønsker du at komme forbi til en uforpligtende snak? Så kontakt os her


Har du spørgsmål om ejendommen eller ønsker du at komme forbi til en uforpligtende snak? Så kontakt os her

