Fremvisning
Book en fremvisning

Mileparken 12740 Skovlunde

Lager/Produktion

Brugerejendom
3.181 m²
C
38.000.000 kr.

Adresse
Mileparken 1
Sagsnr.
114058333
Ejendomstype
Lager/Produktion
Handelstype
Brugerejendom
Pris
38.000.000 kr.
Etageareal
3.181 m²

Arealer

Grundareal
7.415 m²
Bebygget
2.281 m²
Erhvervsareal
3.181 m²
Etageareal
3.181 m²

Nøgletal

Pris
38.000.000 kr.
Pris/m²
11.946 kr.
Ejendomsskatter
1.153 kr.
Grundskyld
154.985 kr.
Dækningsafgift
337.925 kr.
Vurderingsår
2020
Ejendomsværdi
16.100.000 kr.
Grundværdi
4.671.500 kr.

Ejendommen

Byggeår / Ombygget
2001
Omfattet af energimærke
Ja
Energimærke
C

Faciliteter

Ampere
315 stk
Bad og omklædning
Ja
Køkkenfaciliteter
Ja
Ladestander
Ja
Øvrige
Adgang for lastbiler
Parkering
Ja
Porte
Ja
Udenomsarealer
Ja
Ventilation
Ja

Effektiv ramme til lager, let produktion og administration

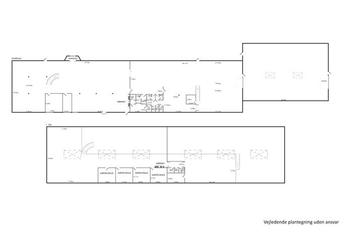
• Moderne brugerejendom: 3.181 m², ca. 1.200 m² nyrenoverede kontorer, samlet høj standard
• Stærk logistik: brede porte på begge sider, regulær grund 7.415 m² med gode udenomsarealer/parkering
• Fleksibel anvendelse: lager, let produktion, engros, service m.m.
• God tilgængelighed: veletableret erhvervsområde tæt på motorvejsnet og ny letbane station
• Praktiske faciliteter: fjernvarme, ventilation, lastbiladgang, ladestandere, præsentabel facade

Mileparken 1 er en præsentabel og moderne brugerejendom fra 2001, opført i betonelementer med tagpap og opvarmet via fjernvarme. Den samlede bygningsmasse udgør 3.181 m² fordelt på to plan uden kælder, med et bebygget areal på 2.281 m² på en regulær grund på 7.415 m². Det giver gode, ordnede udenomsarealer med plads til parkering og varehåndtering, og ejendommen fremstår samlet set velholdt med et nutidigt udtryk.

Kon­to­ra­re­a­ler­ne udgør ca. 1.200 m² og er nyligt opgraderet til lyse og funktionelle miljøer med præsentable faciliteter, og de store glaspartier understøtter et godt dagslys og et professionelt udtryk over for kunder og medarbejdere. De øvrige arealer ligger ligeledes over niveau for området, hvilket gør ejendommen nem at tage i brug uden større tilpasninger.
Der er brede porte på begge sider af bygningen, effektiv til- og frakørsel samt let adgang for lastbiler, så lager, let produktion og administration kan samles på én adresse uden at gå på kompromis med flowet. Ejendommen er se­pa­rat­klo­a­ke­ret og forsynes fra alment vandværk, hvilket sammen med energimærke C giver en enkel og overskuelig drift.

Beliggenheden er en klar styrke: ejendommen ligger i et veletableret er­hvervskvar­ter med kort afstand til den nye letbane og ca. 3,4 km til Motorring 3. Kombinationen af god tilgængelighed og erhvervsprofil gør adressen attraktiv for virksomheder med mobilitet, synlighed og lokation som nøgleparametre.

Planmæssigt ligger ejendommen inden for Lokalplan 121, som udlægger området til erhverv og tillader bl.a. lager, let industri, engros og serviceerhverv. Der ses ikke bestemmelser, der begrænser den nuværende anvendelse eller mulighed for indretning/opdeling inden for den eksisterende ramme, hvilket øger flek­si­bi­li­te­ten for både bruger og investor.

Udbudspris: kr. 38.000.000 kontant (ca. kr. 11.946 pr. m²).

Vil du vide mere om ejendommen?

Har du spørgsmål om ejendommen eller ønsker du at komme forbi til en uforpligtende snak? Så kontakt os her

Besøg butikken