Fabriksvej 20
39.000.000 kr.


Imponerende og alsidig erhvervsejendom i Bording – tæt ved motorvejsnettet
På Fabriksvej i Bording udbydes nu en markant og veldrevet erhvervsejendom med attraktiv beliggenhed – kun få minutters kørsel fra motorvejsnettet. Ejendommen tilbyder et solidt og lavrisiko investeringscase med garanteret lejeindtægt og ingen driftsforpligtelser for investor i de første 6 år.Investering med stabilt afkast og minimal administration:
Ejendommen drives i dag som en velfungerende erhvervspark med pt. 16 forskellige lejere. Erhvervsparken bliver brandet på Facebook, Linkedin og andre platforme som Bording Erhvervspark, som står for al drift vedligehold, viceværtsfunktion, snerydning og administration. Køber kan vælge at fastholde denne konstruktion, således at sælger også fremover står for denne del, hvilket giver køber en passiv investering med fuldt afklarede driftsomkostninger og forudsigelig indtjening.
Alternativt kan køber overtage al drift og konceptet i Bording Erhvervspark, og dermed have den direkte kontakt til alle lejerne. Hermed kan køber få fuldt gavn af de optimeringsmuligheder, som ejendommen rummer.
Ejendommen kan overtages ved en selskabshandel ved køb af anparterne i Bording Erhvervspark ApS.
Ejendommen:
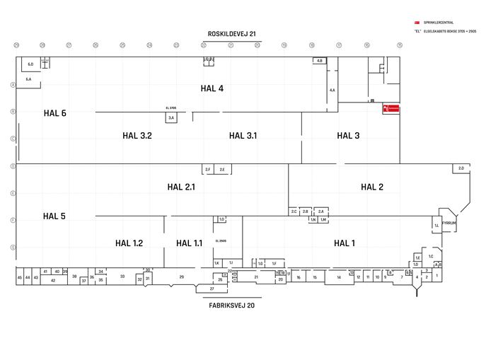
Ejendommen omfatter i alt 20.567 m² og er opført og løbende moderniseret med fokus på funktionalitet og driftssikkerhed. Bygningen består af et præsentabelt administrationsafsnit med kantine og industrikøkken samt store, fleksible lager- og produktionslokaler med porte i niveau og flere ramper.
I efteråret 2025 har industrikøkken og kantine fået en gennemgribende renovering, og står således i dag super skarpt med nye gulve, lofter, klinker, belysning m.v.
Ejendommen huser i dag 16 stabile lejere og har historisk været fuldt udlejet. I 2024 er der nyanlagt 4000 m2 fliser i varegården.
Den løbende vedligeholdelse vidner om professionel drift, herunder også ca. 8.000 m² nyt ståltag (2022–2024). Resten af taget oplyses at være i god stand ift. alder.
Taghøjder:
Nyere bygningsmasse (2007): Fladt tag, 4 m i siderne og 5 m i kip.
Ældre bygningsmasse (før 2007): Saddeltag i bølgeeternit, 3,5 m i siderne og 6 m i kip.
Afstand til
- Bording St.1,8 km
- 15 - Herningmotorvejen2,2 km
- Adresse
- Fabriksvej 20
- Sagsnr.
- 70900599
- Ejendomstype
- Lager/Produktion
- Handelstype
- Investering
- Pris
- 39.000.000 kr.
- Afkast
- 10,49 %
- Etageareal
- 20.567 m²
- Kælder
- 133 m²
Nøgletal
- Grundareal
- 40.210 m²
- Bebygget
- 20.567 m²
- Erhvervsareal
- 20.567 m²
- Produktionsareal
- 20.567 m²
- Etageareal
- 20.567 m²
- Kælder
- 133 m²
Arealer
- Pris
- 39.000.000 kr.
- Pris/m²
- 1.896 kr.
- Lejefaktor
- 9.29
- Lejeindtægt
- 4.200.000 kr.
- Årlig lejeindtægt pr m²
- 204 kr.
- Årlige driftsudgifter
- 107.557 kr.
- Årlige driftsudgifter pr m²
- 5 kr.
- Afkast
- 10,49 %
- Afskrivningsberettiget
- Ja
- Momsregistreret
- Ja
Økonomi
- Byggeår / Ombygget
- 1978 / 2007
- Omfattet af energimærke
- Ja
- Energimærke
- B
Ejendommen


Michael Fænø
Partner, Erhverv, HD-FR, MDE, DiplomValuar

