Ndr. Strandvej 6
Ndr. Strandvej 6
Solgt


Erfaring, lokalkendskab og seriøsitet
Jeg har boet på Bornholm hele mit liv, hvor jeg har solgt ejendomme siden 2004. Jeg har stor erfaring og godt lokalkendskab, hvilket er 2 vigtige elementer i en bolighandel. Jeg gør mig umage hver dag for at give mine kunder den bedste oplevelse, fordi for mig er en handel ikke bare en handel.
Dan Dellgren
Indehaver, Ejendomsmægler MDE
EDC BornholmerBo


Stor erhvervs- og industribygning med attraktiv placering på havnen i Nexø – på lejet grund
Stor og spændende erhvervs- og industribygning med attraktiv placering på havnen i Nexø – beliggende på lejet grundNu sælger Bornholms Regionskommune Ndr. Strandvej 6, 3730 Nexø – en stor og spændende erhvervsbygning på lejet grund med mange muligheder og en attraktiv placering lige ud til havnebassinet på Nexø Havn.
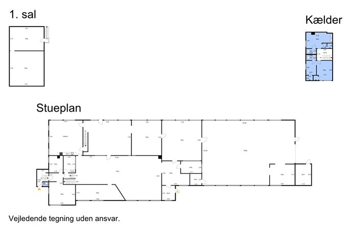
Bygningen byder på 756 m² erhvervsareal samt 62 m² høj kælder med toilet- og badefaciliteter. Den er indrettet med store, åbne rum i forbindelse med hinanden, højt til loftet, store vinduespartier på begge sider og masser af plads – hvilket giver gode muligheder for mange former for anvendelse. Tidligere har bygningen været brugt som maskinværksted, møbeludsalg m.m., men indretningen, placeringen og de mange kvadratmeter gør den velegnet til mange forskellige formål.
Nexø er en by i udvikling, og med den kommende placering af Bornholms Museum længere inde på havnen forventes den positive udvikling at fortsætte. Flere lokale og turister vil besøge byen – året rundt. Nexø har et stærkt lokalt erhvervsnetværk, der arbejder sammen for at skabe det bedste for byen. Den er desuden øens næststørste by og byder på et stort udvalg af butikker, gode indkøbsmuligheder, spisesteder, skole, idrætsfaciliteter m.m. Byen ligger ud til vandet og er omgivet af smuk natur – med klippekysten mod Svaneke mod nord og fine sandstrande mod Balka og Snogebæk mod syd.
Ejendommen er beliggende på lejet grund med gode tilkørselsforhold, stor synlighed og udsigt til havn og vand. Da bygningen ligger på lejet grund, der tilhører Nexø Havn, skal fremtidig anvendelse godkendes af havnen.
Årlig arealleje til Nexø Havn kr. 38.307 ekskl. moms
Ejendommen indeholder:
En stor hal med støbt gulv og hejseport i gavlen. Flere gode disponible rum i forbindelse med hinanden med højt til loftet og store vinduespartier mod både gaden og havnen. Derudover rummer bygningen et indgangsparti, køkken, kontorlokale, toiletfaciliteter til både herrer og damer med bademulighed samt bagindgang, lagerrum, depotrum og teknikum.
Øvrige oplysninger:
Ejendommen opvarmes med fjernvarme.
BEMÆRK!
Ejendommen udbydes til salg af Bornholms Regionskommune i henhold til lov om offentlige udbud. Regionen er ikke forpligtet til at sælge til den udbudte pris.
Afstand til
- Nexø of DBJ museum (Bornholm)34 m
Stor erhvervs- og industribygning med attraktiv placering på havnen i Nexø – på lejet grund
Stor og spændende erhvervs- og industribygning med attraktiv placering på havnen i Nexø – beliggende på lejet grundNu sælger Bornholms Regionskommune Ndr. Strandvej 6, 3730 Nexø – en stor og spændende erhvervsbygning på lejet grund med mange muligheder og en attraktiv placering lige ud til havnebassinet på Nexø Havn.
Bygningen byder på 756 m² erhvervsareal samt 62 m² høj kælder med toilet- og badefaciliteter. Den er indrettet med store, åbne rum i forbindelse med hinanden, højt til loftet, store vinduespartier på begge sider og masser af plads – hvilket giver gode muligheder for mange former for anvendelse. Tidligere har bygningen været brugt som maskinværksted, møbeludsalg m.m., men indretningen, placeringen og de mange kvadratmeter gør den velegnet til mange forskellige formål.
Nexø er en by i udvikling, og med den kommende placering af Bornholms Museum længere inde på havnen forventes den positive udvikling at fortsætte. Flere lokale og turister vil besøge byen – året rundt. Nexø har et stærkt lokalt erhvervsnetværk, der arbejder sammen for at skabe det bedste for byen. Den er desuden øens næststørste by og byder på et stort udvalg af butikker, gode indkøbsmuligheder, spisesteder, skole, idrætsfaciliteter m.m. Byen ligger ud til vandet og er omgivet af smuk natur – med klippekysten mod Svaneke mod nord og fine sandstrande mod Balka og Snogebæk mod syd.
Ejendommen er beliggende på lejet grund med gode tilkørselsforhold, stor synlighed og udsigt til havn og vand. Da bygningen ligger på lejet grund, der tilhører Nexø Havn, skal fremtidig anvendelse godkendes af havnen.
Årlig arealleje til Nexø Havn kr. 38.307 ekskl. moms
Ejendommen indeholder:
En stor hal med støbt gulv og hejseport i gavlen. Flere gode disponible rum i forbindelse med hinanden med højt til loftet og store vinduespartier mod både gaden og havnen. Derudover rummer bygningen et indgangsparti, køkken, kontorlokale, toiletfaciliteter til både herrer og damer med bademulighed samt bagindgang, lagerrum, depotrum og teknikum.
Øvrige oplysninger:
Ejendommen opvarmes med fjernvarme.
BEMÆRK!
Ejendommen udbydes til salg af Bornholms Regionskommune i henhold til lov om offentlige udbud. Regionen er ikke forpligtet til at sælge til den udbudte pris.
Afstand til
- Nexø of DBJ museum (Bornholm)34 m
- Adresse
- Ndr. Strandvej 6
- Sagsnr.
- 372001500
- Ejendomstype
- Lager/Produktion
- Handelstype
- Brugerejendom
- Etageareal
- 759 m²
- Kælder
- 62 m²
Nøgletal
- Bebygget
- 759 m²
- Erhvervsareal
- 759 m²
- Etageareal
- 759 m²
- Kælder
- 62 m²
Arealer
- Forsikringspræmie
- 15.000 kr.
- Andre beløb
- 38.307 kr.
- Vurderingsår
- 2020
- Ejendomsværdi
- 1.300.000 kr.
Økonomi
- Antal etager
- 1
- Byggeår / Ombygget
- 1953 / 1985
- Omfattet af energimærke
- Nej
Ejendommen


Kurt Mortensen
Indehaver, Ejendomsmægler & Valuar MDE