
Fremvisning
Book en fremvisning
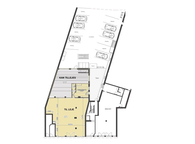
Bredgade 7 st7400 Herning
Detail
m²202 m²
D
202.000 kr./år



Har du spørgsmål om ejendommen eller ønsker du at komme forbi til en uforpligtende snak? Så kontakt os her


Har du spørgsmål om ejendommen eller ønsker du at komme forbi til en uforpligtende snak? Så kontakt os her

