Østergade 33
Udlejet

- Adresse
- Østergade 33
- Sagsnr.
- 812003237
- Ejendomstype
- Detail
Nøgletal
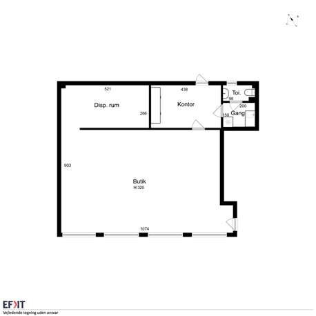
- Etageareal
- 118 m²
Arealer
- Årlige driftsudgifter
- 31.934 kr.
- Månedlige driftsudgifter
- 2.661 kr.
- Årlige driftsudgifter pr m²
- 271 kr.
- Depositum
- 123.900 kr.
- Aconto Vandudgift
- 5.262 kr.
- Aconto Varmeudgifter
- 10.456 kr.
- Elektricitet
- Direkte til forsyningsselskabet
- Momsregistreret
- Ja
- Afståelsesret
- Nej
Økonomi
- Uopsigelighed fra lejer
- 2 år
- Uopsigelighed fra udlejer
- 4 år
- Opsigelse
- 6 måneder
- Indvendig vedligeholdelse
- Lejer
- Udvendig vedligeholdelse
- Udlejer
- Lejeregulering
- NPI, dog min. 2,5%
- Overtagelsesdato
- 1. jan. 2026
- Afståelsesret
- Nej
Lejeforhold
- Opvarmningstype
- Fjernvarme/blokvarme (radiatorsystemer eller varmluftanlæg)
- Omfattet af energimærke
- Ja
- Energimærke
- B
Ejendommen

Dan Honoré
Erhvervsmægler, MDE, Diplom i Vurdering


