
Fremvisning
Book en fremvisning
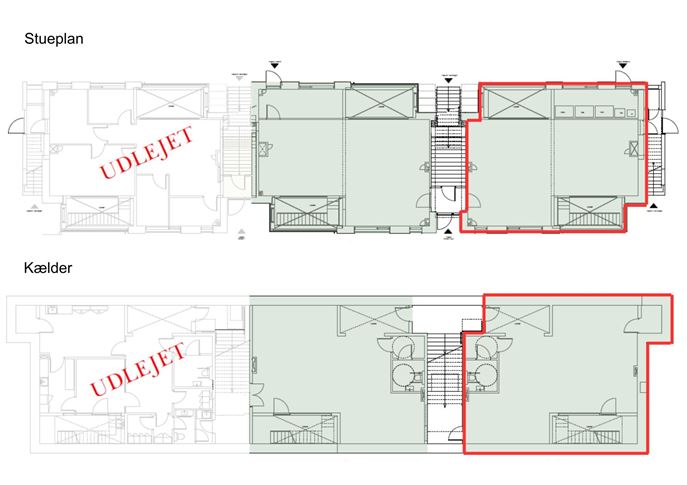
Nordre Strandvej 78240 Risskov
Detail
m²240 m²
493.500 kr./år



Har du spørgsmål om ejendommen eller ønsker du at komme forbi til en uforpligtende snak? Så kontakt os her


Har du spørgsmål om ejendommen eller ønsker du at komme forbi til en uforpligtende snak? Så kontakt os her

