
Fremvisning
Book en fremvisning
Søndergade 30, st. th.8700 Horsens
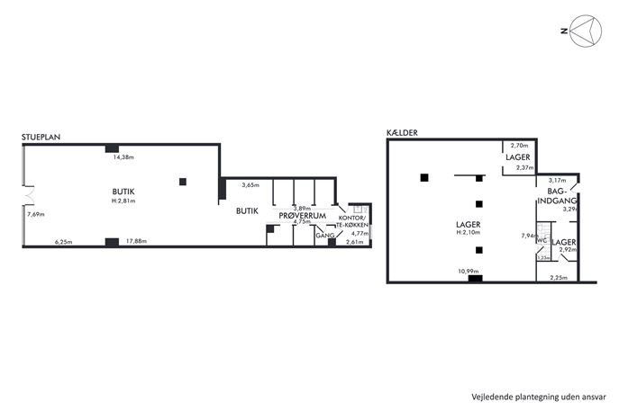
Detail
m²334 m²
450.000 kr./år



Har du spørgsmål om ejendommen eller ønsker du at komme forbi til en uforpligtende snak? Så kontakt os her


Har du spørgsmål om ejendommen eller ønsker du at komme forbi til en uforpligtende snak? Så kontakt os her

