
Fremvisning
Book en fremvisning
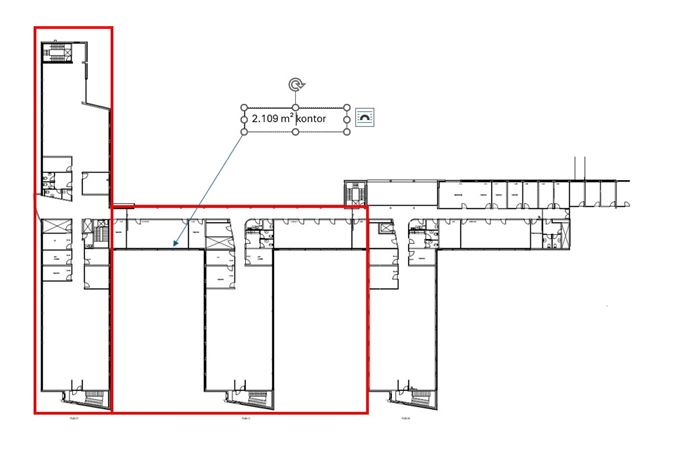
Langebjerg 14000 Roskilde
Kontor
m²2.109 m²
C
2.520.776 kr./år



Har du spørgsmål om ejendommen eller ønsker du at komme forbi til en uforpligtende snak? Så kontakt os her


Har du spørgsmål om ejendommen eller ønsker du at komme forbi til en uforpligtende snak? Så kontakt os her

