Fremvisning
Book en fremvisning

Frederiks Plads 368000 Aarhus C

Kontor

3.317 m²
A2015
5.272.949 kr./år

Adresse
Frederiks Plads 36
Sagsnr.
812003336
Ejendomstype
Kontor
Årlig leje
5.272.949 kr./år

Arealer

Etageareal
3.317 m²

Nøgletal

Årlig leje
5.272.949 kr./år
Månedlig leje
439.412 kr.
Årlig leje pr. m²
1.589 kr.
Årlige driftsudgifter
1.174.218 kr.
Månedlige driftsudgifter
97.851 kr.
Årlige driftsudgifter pr m²
354 kr.
Bruttoleje pr. år
6.447.167 kr.
Månedlig bruttoleje
537.263 kr.
Årlig bruttoleje pr. m²
1.943 kr.
Depositum
2.636.475 kr.
Elektricitet
Betales direkte til forsyningsselskab
Momsregistreret
Ja
Afståelsesret
Nej

Lejeforhold

Uopsigelighed fra lejer
Efter aftale
Uopsigelighed fra udlejer
Efter aftale
Opsigelse
6 måneders varsel
Indvendig vedligeholdelse
Lejer
Udvendig vedligeholdelse
Udlejer
Lejeregulering
NPI, dog min. 2,5%
Afståelsesret
Nej

Ejendommen

Opvarmningstype
Udefineret
Byggeår / Ombygget
2018
Omfattet af energimærke
Ja
Energimærke
A2015

Moderne kontorlejemål på Frederiks Plads – centralt i Aarhus C

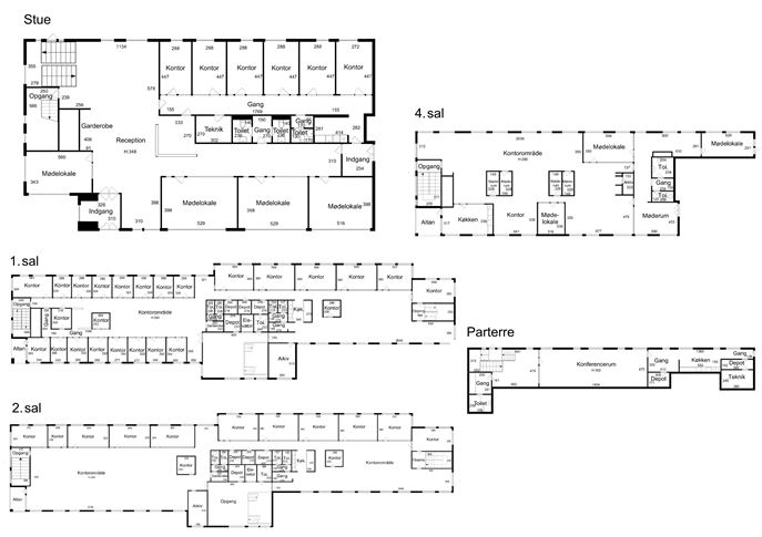
Ejendommen udgør en markant og moderne kontoradresse i et af byens mest attraktive er­hvervs­om­rå­der. I alt ca. 4.132 m² står ledige og kan lejes samlet eller opdeles i selvstændige etagelejemål, hvilket giver fleksible muligheder for både mellemstore og større virksomheder. Der er mulighed for leje af p-pladser i kælderen.

Med sin centrale placering i Aarhus C, kort afstand til E45 og Aarhus Hovedbanegård samt byliv og havnefront i umiddelbar nærhed, kombinerer ejendommen høj tilgængelighed med en attraktiv og repræsentativ ramme om virksomhedens aktiviteter.

Ejendommen henvender sig til virksomheder, der ønsker moderne og fleksible kon­tor­fa­ci­li­te­ter på en stærk og synlig adresse i hjertet af Aarhus.

Ejendommen er disponeret med høj grad af fleksibilitet og kan tilpasses den enkelte lejers behov. 3. sal er udlejet, mens de resterende etager kan lejes samlet eller opdeles i selvstændige etagelejemål, hvilket giver mulighed for én eller flere nye lejere i ejendommen.

Vil du vide mere om ejendommen?

Har du spørgsmål om ejendommen eller ønsker du at komme forbi til en uforpligtende snak? Så kontakt os her

Besøg butikken