
Fremvisning
Book en fremvisning
Kalkværksvej 7 2 18000 Aarhus C
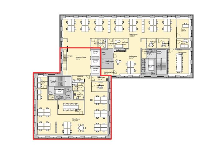
Kontor
m²371 m²
A2015
519.400 kr./år



Har du spørgsmål om ejendommen eller ønsker du at komme forbi til en uforpligtende snak? Så kontakt os her


Har du spørgsmål om ejendommen eller ønsker du at komme forbi til en uforpligtende snak? Så kontakt os her

