
Fremvisning
Book en fremvisning
Emil Møllers Gade 41C 1. sal, - Bygning 78700 Horsens
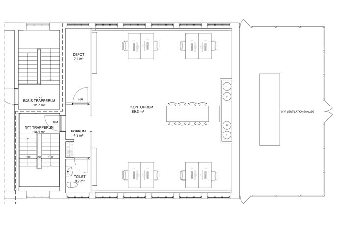
Kontor
m²137 m²
116.450 kr./år



Har du spørgsmål om ejendommen eller ønsker du at komme forbi til en uforpligtende snak? Så kontakt os her

Har du spørgsmål om ejendommen eller ønsker du at komme forbi til en uforpligtende snak? Så kontakt os her
