Stærk beliggenhed, stor grund og markant udviklingspotentiale
• Grund på ca. 10.000 m² med ca. 7.500 m² asfalteret og befæstet areal
• Bygning på 6.253 m² med 1. sal (kontor) på 2.133 m² - stue (showroom og kontor) på 2.509 m²
• Parterre/kælder på 1.610 m² med kantine, kontor og lager
• Velegnet til kontor, lager, logistik, produktion og pladskrævende detail
• God placering i Brøndby tæt på motorvej og offentlig transport
Ejendommen på Midtager 20 er en markant og funktionel erhvervsejendom, som bruges af Ayvens Societe Generale Group som bilhus. Ejendommen er beliggende i et veletableret erhvervsområde i Brøndby med hurtig adgang til motorvejsnettet og gode forbindelser til resten af Storkøbenhavn.
Et særligt aktiv ved ejendommen er den store og regulære grund på 10.004 m², som har 7.500 m² befæstet asfalteret udenomsarealer og høj fleksibilitet i den daglige drift, herunder parkering, manøvrearealer og eventuelt oplag.
Bygningen fremstår som et tidssvarende erhvervslejemål med en indretning, der understøtter moderne virksomhedsdrift. Ejendommen indeholder bl.a. åbne kontorarealer, mødelokaler, showroom og supplerende cellekontorer, og den er disponeret med gode faciliteter til både medarbejdere og gæster. Hertil kommer en stor indhegnet parkeringsplads, hvilket er et klart plus i området.
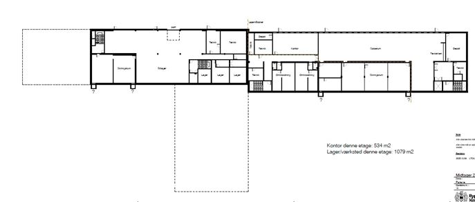
Bygningen er disponeret med en funktionel og fleksibel opdeling over flere niveauer. Stueplan på 2.509 m² rummer et kombineret showroom og kontormiljø, hvor de præsentable arealer mod den ene bygningsfløj understøttes af tilhørende kontorer og mødefaciliteter. 1. sal på 2.133 er hovedsageligt indrettet til kontorbrug med en række cellekontorer og administrative arealer, hvilket gør etagen velegnet til samlet administration og medarbejderfunktioner. Herudover indeholder ejendommen et parterre niveau på 1.610 m² med rampetilgang og naturligt dagslys, som i dag anvendes til kantine, kontor og lagerformål, men som samtidig fremstår anvendeligt og operationelt i den daglige drift. Fra hovedbygningen er der desuden adgang til en højloftet showroom og lagertilbygning, der giver gode muligheder for præsentation, opbevaring og varehåndtering. Tilbygningen er forsynet med portadgang, og der vurderes at være mulighed for etablering af yderligere porte, hvilket kan styrke ejendommens anvendelighed yderligere for virksomheder med behov for logistik, showroom eller kombineret lager og administration.
Ejendommen har samtidig en interessant historik og har tidligere været hovedsæde for Storno og senere Motorola Danmark, hvor den bl.a. fungerede som europæisk udviklingscenter for teknologi bag 2G/GSM.
Samlet set er der tale om en attraktiv erhvervsejendom med stærk beliggenhed, stor grund og tydeligt udbygningspotentiale, oplagt for både en slutbruger med vækstplaner og en investor, der ønsker mulighed for værdiskabende udvikling.