Fremvisning
Book en fremvisning

Industrivænget 194622 Havdrup

Lager/Produktion

910 m²
477.750 kr./år

Adresse
Industrivænget 19
Sagsnr.
403601038
Ejendomstype
Lager/Produktion
Årlig leje
477.750 kr./år
Erhvervsareal
910 m²

Arealer

Grundareal
7.984 m²
Bebygget
910 m²
Erhvervsareal
910 m²
Etageareal
910 m²

Nøgletal

Årlig leje
477.750 kr./år
Månedlig leje
39.812 kr.
Årlig leje pr. m²
525 kr.
Bruttoleje pr. år
477.750 kr.
Månedlig bruttoleje
39.812 kr.
Årlig bruttoleje pr. m²
525 kr.
Depositum
238.875 kr.
Aconto Vandudgift
24.000 kr.
Aconto Varmeudgifter
108.000 kr.
Momsregistreret
Ja
Afståelsesret
Nej

Lejeforhold

Uopsigelighed fra lejer
2 år
Uopsigelighed fra udlejer
4 år
Opsigelse
6 måneder
Indvendig vedligeholdelse
Lejer
Udvendig vedligeholdelse
Udlejer
Lejeregulering
NPI, min 2,5%
Overtagelse
Aftales nærmere
Afståelsesret
Nej

Ejendommen

Opvarmningstype
Centralvarme fra eget anlæg, et-kammer fyr
Omfattet af energimærke
Nej

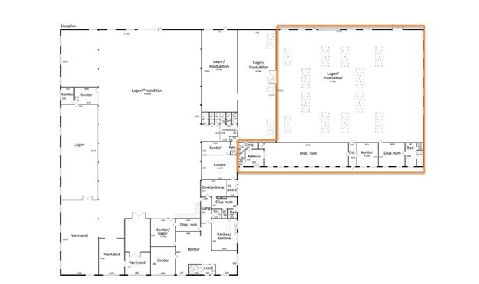
Højloftet lager- og pro­duk­tions­e­jen­dom med central beliggenhed mellem Køge og Roskilde

• Stort søjlefrit og opvarmet lager-/ produktionshal med regulært areal og loftshøjde op til ca. 9 m
• Gode adgangs-og lo­gi­stik­for­hold med kørefast gulv og stor port
• Veldisponerede kon­tor­fa­ci­li­te­ter med fleksibel indretning
• Store udenomsarealer med gode parkerings- og op­lags­mu­lig­he­der
• God beliggenhed mellem Roskilde og Køge

Ejendommen på Industrivænget 19, 4622 Havdrup er en rummelig lager- og pro­duk­tions­e­jen­dom opført i 1971 med efterfølgende til- og ombygninger i 1977 og 1987. Ejendommen består primært af to store, regulære og højloftede lagerhaller med tilhørende kon­tor­fa­ci­li­te­ter.

Lagerhallen er overvejende søljefri og opvarmet og har loftshøjder på op til 8,8 meter. De er indrettet med kørefast underlag og har en stor port (ca. 4 x 4 meter) på ejendommens bagside, hvilket sikrer gode adgangs- og lo­gi­stik­for­hold. Opvarmning sker via gulvvarme, og ejendommen er yderligere udstyret med funktionelle faciliteter såsom udsugning
og traverskran med løftekapacitet op til 3 ton.

Kon­to­ra­re­a­ler­ne er veldisponerede med både større og mindre kontorenheder samt te-køkken, bad og toiletforhold. Kontorerne kan istandsættes efter nærmere aftale med udlejer. Der er direkte intern adgang mellem kontorer og lagerhaller, ligesom der er separat indgang fra par­ke­rings­a­re­a­let til kon­to­r­af­snit­tet.

Ejendommen råder desuden over et stort grundareal, hvor der er mulighed for at leje yderligere areal til oplag efter behov.

Vil du vide mere om ejendommen?

Har du spørgsmål om ejendommen eller ønsker du at komme forbi til en uforpligtende snak? Så kontakt os her

Besøg butikken