
Fremvisning
Book en fremvisning
Industrivej 78752 Østbirk
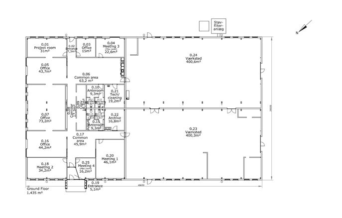
Lager/Produktion
m²1.435 m²
508.750 kr./år



Har du spørgsmål om ejendommen eller ønsker du at komme forbi til en uforpligtende snak? Så kontakt os her

Har du spørgsmål om ejendommen eller ønsker du at komme forbi til en uforpligtende snak? Så kontakt os her
