Fremvisning
Book en fremvisning

Jens Otto Krags Plads 38900 Randers C

Undervisning

7.798 m²
A2015
7.642.300 kr./år

Adresse
Jens Otto Krags Plads 3
Sagsnr.
892514970
Ejendomstype
Undervisning
Årlig leje
7.642.300 kr./år

Arealer

Grundareal
3.043 m²
Bebygget
1.962 m²
Etageareal
7.798 m²

Nøgletal

Årlig leje
7.642.300 kr./år
Månedlig leje
636.858 kr.
Årlig leje pr. m²
980 kr.
Årlige driftsudgifter
633.420 kr.
Månedlige driftsudgifter
52.785 kr.
Årlige driftsudgifter pr m²
81 kr.
Bruttoleje pr. år
8.275.720 kr.
Månedlig bruttoleje
689.643 kr.
Årlig bruttoleje pr. m²
1.061 kr.
Depositum
3.821.150 kr.
Elektricitet
Lejer er tilmeldt hos forsyningsselskab
Momsregistreret
Ja
Afståelsesret
Nej

Lejeforhold

Opsigelse
Aftales
Indvendig vedligeholdelse
Lejer
Udvendig vedligeholdelse
Udlejer
Lejeregulering
NPI min. 3 %
Afståelsesret
Nej

Ejendommen

Opvarmningstype
Fjernvarme/blokvarme (radiatorsystemer eller varmluftanlæg)
Antal etager
4
Byggeår / Ombygget
2013
Omfattet af energimærke
Ja
Energimærke
A2015

Faciliteter

Bad og omklædning
Ja
Cykelparkering
Ja
Fælles mødefaciliteter
Ja
Kabling
Ja
Kantine
Ja
Køkkenfaciliteter
Ja
Mødefaciliteter
Ja
Parkering
Parkeringskælder
Personaleelevator
Ja
Reception
Ja
Tagterrasse
Ja
Toiletter
Ja
Udenomsarealer
Befæstet
Ventilation
Ja
Vinduestype
Termo

En sjælden mulighed byder sig i det centrale i Randers

En sjælden mulighed byder sig i det centrale i Randers, hvor vi nu kan præsentere Jens Otto Krags Plads 3.

Ejendommen som er opført til VIA, bliver som udgangspunkt ledig i løbet af foråret 2030. Med opførslen til netop VIA, ligger det i kortene, at der tilbage i 2013 er opført en 'state of the art' ud­dan­nel­ses­byg­ning.

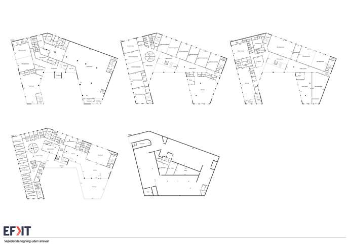
Ejendommen er indrettet i 4 plan. Stueplanet med stor åben hall, reception, café-område, 2 store un­der­vis­nings­lo­ka­ler, toiletter samt et stort regulært lokale som kan indrettes til yderligere un­der­vis­nings­lo­ka­ler, stor bevægelsessal eller lignende.
Fra stueplanet er der en flot intern trappe samt elevator, som i øvrigt også forbinder par­ke­rings­kæl­de­ren med resten af bygningen. Førstesalen rummer 7 store un­der­vis­nings­lo­ka­ler, hvor enkelte af disse i dag er indrettet til bevægelsessale med gulvbelægning til formålet. I forbindelse hermed er der toiletter, bad og om­klæd­nings­fa­ci­li­te­ter.
På anden sal finder du 11 un­der­vis­nings­lo­ka­ler, bibliotek (som også kan fungere som un­der­vis­nings­lo­ka­le eller lignede, arbejdsrum/grupperum på gangene).
På tredje sal får du en fantastisk udsigt ud over byen og som en del af kantineområdet, (hvor der også er industrikøkken), er der en stor tagterrasse hvor frokosten kan nydes. Herudover er der stort auditorie med højt til loftet, samt ad­mi­ni­stra­tions­om­rå­de med 21 mindre kontorer med plads til 2-4 personer, mødelokaler, arbejdsrum og ad­mi­ni­stra­tions­kon­tor.

Fælles for etagerne er de lyse og rummelige gangarealer, som er ideelle til ophold, gruppearbejde mv. Der er toiletter på hver etage, og generelt er ejendommen forsynet med vinduesbånd som uanset, hvor i bygningen du befinder dig er et naturligt og godt lysindfald, og ven­ti­la­tions­an­læg­get sørger for det rette indeklima.

Der er ca. 65 par­ke­rings­pla­der i par­ke­rings­kæl­de­ren, som kan lejes seperat.
På siden af bygningen i Stemannsgade er der yderligere 14 par­ke­rings­plad­ser.

Arealer:
Stue: 1.962 m²
1. sal: 1.945 m²
2. sal: 1.945 m²
3. sal: 1.600 m² (herudover 346 m² tagterrasse)

Lejemålet overtages med nymalede vægge, eksisterende gulv­be­læg­nin­ger og nuværende systemlofter.

Vil du vide mere om ejendommen?

Har du spørgsmål om ejendommen eller ønsker du at komme forbi til en uforpligtende snak? Så kontakt os her

Besøg butikken