Aldersrogade 3A, 3. th
17.200 kr./md.

Nyopført 3 værelses lejlighed
Området:Meget central beliggenhed med 100 meter til Fælledparken og Vibenhus Runddel Metro Station. Flere gode busforbindelser på Jagtvej og Lyngbyvej. Gode indkøbsmuligheder i bl.a. Østerbro Centret, der ligger kun 200 meter fra ejendommen. Kort afstand til det gode cafèliv på både Østerbro og Nørrebro samt kort afstand til City.
Ejendommen:
Flot nyopført ejendom fra 2025 med fælles tagterrasse, hvor du har en fantastisk udsigt over byen. Ejendommen er med elevator, gulvvarme og et hyggeligt gårdmiljø. Køkkenelementerne er fra Invita. Gulvvarme, fælleslokale og depotrum til alle lejligheder. Ejendommen er bygget i kvalitetsmaterialer og de bedste vilkår for miljøet, så der sigtes efter en DGNB Guld certificering, når byggeriet står færdigt.
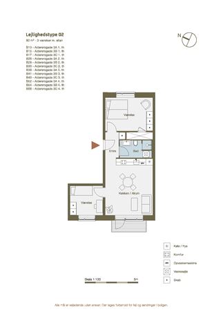
Entrè og godt køkken/alrum med udgang til altan. To gode værelser og flot flisebadeværelse med vaskesøjle og bruseniche.
Bemærk venligst: Billederne er fra prøveboligen.
Fakta om København (667.099 indbyggere)
- Kommuneskat
- 23,5%
- Landsgennemsnit
- 25,4%
- Grundskyldspromille
- 5,1
- Landsgennemsnit
- 10,192
Pasningstakster
- Vuggestue 0-2 år
- 3.996 kr./md.
- Dagpleje 0-2 år
- 3.987 kr./md.
- Børnehave 3-5 år
- 2.317 kr./md.
- Antal folkeskoler
- 64
- Gns. klassekvotient
- 22,9
- Sagsnr.
- 11808394
- Boligareal
- 80 m²
- Rum/værelser
- 3/2
- Antal etager
- 1
- Leje
- 17.200 kr./md.
- Depositum
- 3 måneders husleje, 51.600 kr.
- Forudbetalt leje
- 1 måneds husleje, 17.200 kr.
- Aconto Varmeudgifter
- 600 kr.
- Aconto Vandudgift
- 350 kr.
- Antenne pris
- 0 kr.
- Internet
- 0 kr.
- Altan/terrasse
- Ja
- Elevator
- Ja
- Lejeperiode
- Ubegrænset
- Tilgængelig fra
- 15. dec. 2025
Oplysninger

Josefine Mathilde Petrea Haejselbak Dahl
Projektmægler, Ejendomsmægler, MDE

