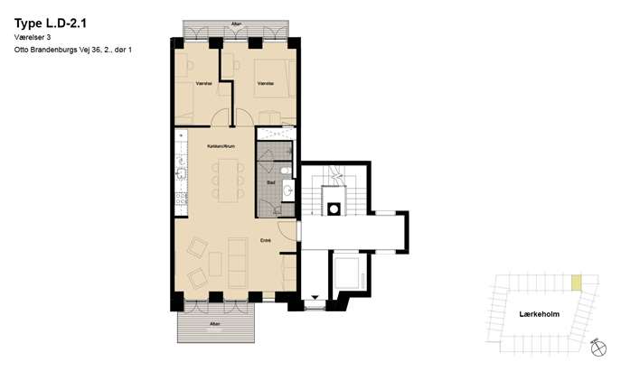
Otto Brandenburgs Vej 36, 2. 1
16.800 kr./md.
Nyhed

Bo i Sluseholmen
Bo tæt på vandet i Sluseholmen. Sluseholmen giver en moderne stemning med de mange små broer der fordeler ejendommene, samt forbindelserne med bl.a. Teglholmen. Ejendommen indeholder lejligheder fra 2-5 værelser. Her bliver kvadratmeterne udnyttet bedst muligt. Lejlighederne består af lækre detaljer såsom gulve af brede egeplanker, fuldt HTH-køkken og badeværelse.Lærkeholm ligger midt på Sluseholmen. Her er ikke blot kanaler til alle sider; når du bor her, får du en dejlig gårdhave med væksthuse, hvor naboerne kommer hinanden ved, og udgang ud til den hyggelige træmole. Her er både lejligheder og kanalhuse i flere plan – alle med én eller flere altaner.
Der er mulighed for leje af p-plads.
OBS: Billeder er fra prøvebolig
Fakta om København (667.099 indbyggere)
- Kommuneskat
- 23,5%
- Landsgennemsnit
- 25,4%
- Grundskyldspromille
- 5,1
- Landsgennemsnit
- 10,192
Pasningstakster
- Vuggestue 0-2 år
- 3.996 kr./md.
- Dagpleje 0-2 år
- 3.987 kr./md.
- Børnehave 3-5 år
- 2.317 kr./md.
- Antal folkeskoler
- 64
- Gns. klassekvotient
- 22,9
- Sagsnr.
- 11808514
- Boligareal
- 88 m²
- Rum/værelser
- 3/2
- Antal etager
- 1
- Leje
- 16.800 kr./md.
- Depositum
- 3 måneders husleje, 50.400 kr.
- Forudbetalt leje
- Ikke aktuel, 0 kr.
- Aconto Varmeudgifter
- 650 kr.
- Aconto Vandudgift
- 350 kr.
- Antenne pris
- 0 kr.
- Internet
- 0 kr.
- Altan/terrasse
- Ja
- Elevator
- Ja
- Lejeperiode
- Ubegrænset
- Tilgængelig fra
- 1. mar. 2026
Oplysninger

National mæglervirksomhed med lokalt kendskab
Vi er Danmarks største mæglervirksomhed og kender både de lokale, nationale og internationale markedsforhold. Derfor kan jeg hjælpe dig, uanset om du skal købe, sælge, leje eller udleje.

