Agerskovvej 4G, 2.
Solgt


Vestvendt altan, alrum og godt badeværelse
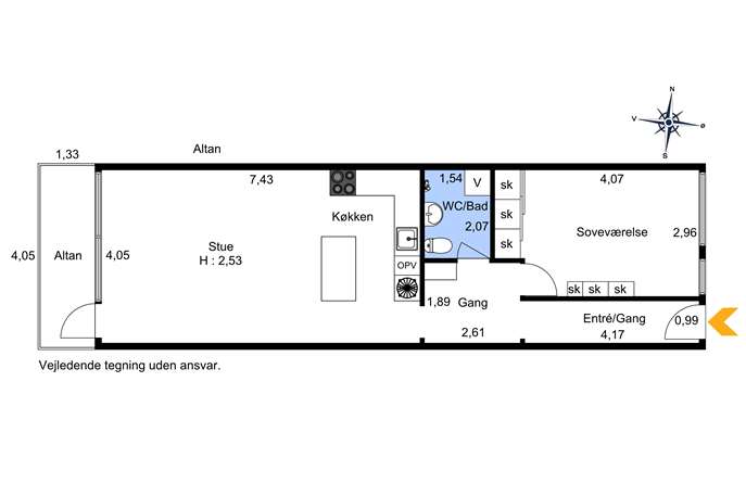
I det sydlige Rødovre finder du denne 2 værelses lejlighed centralt beliggende nær indkøb, grønne områder og offentlig transport i form af flere busser og s-tog fra Rødovre Station, som nemt hjælper dig til og fra København. Dagligdagens indkøb kan nemt klares i den nærtliggende Netto eller Rema1000. Ved Damhussøen og Damhusengen er der mulighed for gå- og løbeture i flotte omgivelser, og ønsker du at shoppe er der en kort gåtur til det populære Rødovre Centrum. Det bliver ikke meget bedre!Lejligheden ligger på 2. sal og her er der en dejlig udsigt over det omkringliggende villaområde og et kig ind mod København. Ejendommen har elevator så det er nemt at nå op til den store lejlighed op hele 70m2. De gode kvadratmeter er fordelt på et rummeligt soveværelse, stue med åbent hvidt nyere køkken med opvaskemaskine og flytbar køkkenøl, flot renoveret badeværelse med separat bruseniche og vaskemaskine, en stor entre med plads til overtøjet og ikke mindst en vestvendt altan i hele stuens bredde, hvor aftensolen kan nydes. Her er rigelig plads til et bord med tilhørende stole. Køkkenet er sammenhængende med den store vestvendte stue hvilket giver et utroligt godt lysindfald. Det åbne køkken indbyder til hyggelige stunder, når der er gæster på besøg. Soveværelset er i den gode størrelse med indbygget skabe, der giver mulighed for opbevaring.
Foreningen byder på fælles vaske- og tørrerum, brugsret til eget kælderrum, mulighed for parkering på foreningens store p-plads, cykelkælder, aktivitetsrum, hyggeligt grønt havemiljø og elevator.
Bemærk at sælger her har indfriet fælleslånene i foreningen, hvorfor ejerudgiften er lav.
En lejlighed til dig der ønsker at bo centralt, nyde aftenssolen fra altanen og have lidt mere rum end i en standard 2-værelses lejlighed.
Fakta om Rødovre (44.734 indbyggere)
- Kommuneskat
- 25,7%
- Landsgennemsnit
- 25,4%
- Grundskyldspromille
- 7,8
- Landsgennemsnit
- 10,191
Pasningstakster
- Vuggestue 0-2 år
- 3.923 kr./md.
- Dagpleje 0-2 år
- 3.719 kr./md.
- Børnehave 3-5 år
- 2.253 kr./md.
- Antal folkeskoler
- 7
- Gns. klassekvotient
- 21,7
- Sagsnr.
- 26103946
- Boligareal
- 70 m²
- Rum/værelser
- 2/2
- Byggeår
- 1968
- Energimærke
- C
- Husdyr tilladt
- Ja
- Vaskerum
- Ja
- Cykelkælder
- Ja
- Altan/terrasse
- Ja
- Elevator
- Ja
- Liggetid
- 23 dage
Oplysninger

National boligmæglervirksomhed med lokalt kendskab
Vi er Danmarks største mæglervirksomhed og kender både lokale og nationale markedsforhold. Derfor kan jeg hjælpe dig med at realisere dine boligdrømme. Kontakt mig for en uforpligtende snak.
Casper Sloth Byrialsen
Indehaver, ejendomsmægler, MDE

