
Fremvisning
Book en fremvisning
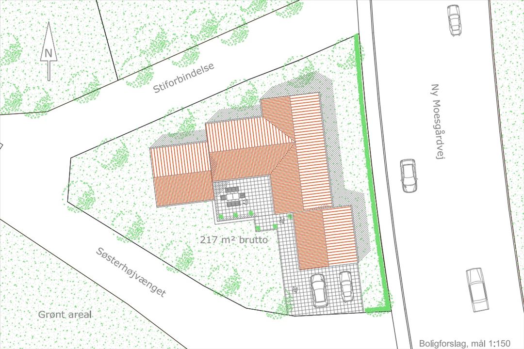
Ny Moesgårdvej 1008270 Højbjerg
Helårsgrund
m²735 m²
4.400.000 kr.



Har du spørgsmål om boligen eller ønsker du at komme forbi til en uforpligtende snak? Så kontakt os her

Har du spørgsmål om boligen eller ønsker du at komme forbi til en uforpligtende snak? Så kontakt os her
