Svendborgvej 460, Højby5260 Odense S

Villa

7/4 rum
158 m²
C

Fakta om boligen

Sagsnr.
51107091
Boligareal
158 m²
Kælder
60 m²
Vægtet areal
182 m²
Rum/værelser
7/4
Grundareal
6.841 m²
Antal etager
2
Byggeår
1936
Ombygget
1984
Energimærke
C
Liggetid
126 dage

Økonomi

Fakta om kommunen

Kommuneskat
25,5 %
Landsgennemsnit
25,4 %
Grundskyldspromille
5,7
Landsgennemsnit
10,2
Pasningstakster
Vuggestue (0-2 år)
3.443 kr./md.
Dagpleje (0-2 år)
3.133 kr./md
Børnehave (3-5 år)
2.158 kr./md.
Antal folkeskoler
32
Gns. klassekvotient
22,0

Charmerende villa i naturskønne omgivelser

I Højby finder man denne charmerende og rummelige villa, som byder på masser af plads både ude og inde. Her får du en bolig med mange muligheder, en hyggelig atmosfære og en skøn beliggenhed tæt på natur og byens be­kvem­me­lig­he­der.

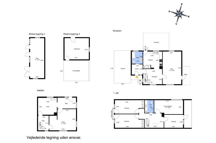
Stueplan rummer en entré, et lyst køkken med spiseplads samt en rummelig stue med brændeovn og plads til både spiseafdeling og so­faar­ran­ge­ment. Fra stuen er der udgang til en dejlig altan, hvor man kan nyde udsigten over haven. I stueplan findes desuden et skønt stort badeværelse med både badekar og bruseniche. Herudover er der en mindre stue med åbent til køkkenet.

På førstesalen venter fire værelser i gode størrelser, der giver plads til hele familien – hvad enten man har brug for børneværelser, kontor eller gæsteværelse. Hertil et ekstra toilet, som gør etagen særdeles funktionel i hverdagen. Tillige er der et stort repose som bruges som ekstra hyggestue.

Kælderen giver mange an­ven­del­ses­mu­lig­he­der med flere disponible rum, et vaskerum samt god plads til opbevaring.

Udenfor er der en stor og ugeneret have med god plads til både leg og afslapning. Derudover rummer grunden en carport, værksted samt ekstra bygninger. Den ene af disse byder på en hyggelig, overdækket terrasse, som forlænger sommeren og gør det muligt at nyde udelivet i al slags vejr.

En villa med plads, charme og mange muligheder – et ideelt hjem for den pladskrævende familie, der ønsker en bolig med både funktionalitet og hyggelige rammer tæt på Odense.



Når du køber en bolig gennem EDC, har du mulighed for at få en gratis flyt­te­for­sik­ring. Ønsker du denne, skal du sende en mail med "Ja tak" til flyt­te­for­sik­ring@gjensidige.dk

Vil du vide mere om boligen?

Har du spørgsmål om boligen eller ønsker du at komme forbi til en uforpligtende snak? Så kontakt os her

Besøg butikken