Møllebakken 23
Købsaftale underskrevet


Indbydende og renoveret villa på lukket villavej
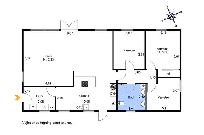
Smagfuldt renoveret 70´villa med et moderne udtryk og en god planløsning – Værelsesafdeling med badeværelse og indbydende opholdsafdeling, hvor køkken/alrum er i åben forbindelse med stue og med udgang til dejligt terrassemiljø. Endvidere isoleret værksted/garage, til manden som ønsker rammer, der er udover det sædvanlige – her er varmepumpe, el-port og en mindre lift til fx havetraktor/knallert/motorcykel. Den omfattende renovering har blandt indeholdt – køkken, bad, troldtekt lofter og flotte gulve samt vandskuret facade, 3 lags træ/alu vinduer samt udskiftning af taget.Huset er beliggende centralt i Hurup på lukket villavej. Her er kun få minutters gang til gågade og indkøb. Hurup byder på det populære Sydthy Kurbad samt Sydthy svømmebad og en 18-hullers golfbane - Sydthy Golfklub. Hurup er en driftig handelsby med skole til 9. klasse, gågade med mange specialbutikker, 4 supermarkeder samt gode sportsmuligheder.
Huset er indrettet med et renoveret entre/bryggers med klinkegulv, vaskefaciliteter og garderobeplads på akustikvæg. Stor indbydende opholdsafdeling, som gennemgående har et lyst udtryk med lyse vægge, troldtekt loft med spots samt flot og slidstærkt korkvinylgulv. Lyst køkken/alrum, som er indrettet med vægfliser med guldlook og et moderne Nettoline-køkken flotte grå elementer og kogeø, samt akustikvæg med bio-pejs i alrummet, hvor der endvidere er udgang til lækkert terrassemiljø i forbindelse med baghaven. Alrummet er i åben forbindelse med opholdsstuen, hvor den lyse stil er bevaret.
Værelsesafdelingen er indrettet med 2 gode børneværelser og et soveværelse med skabsvæg samt et flot renoveret badeværelse med mange gode detaljer – bemærk sammenspillet mellem de flotte klinker og det vellykkede interiør, som tilfører en eksklusiv stemning til badeværelset.
Til huset hører en rigtig god værksted/garage, som er isoleret og indrettet med god belysning, varmepumpe og malet gulv. Her er en lille lift til fx havetraktor/knallert.
Der er muligt at tilkøbe nabogrunden (nr. 25), hvis man ønsker at bevare en stor rummelig have – forhør nærmere.
Fakta om Thisted (42.698 indbyggere)
- Kommuneskat
- 25,5%
- Landsgennemsnit
- 25,4%
- Grundskyldspromille
- 11,2
- Landsgennemsnit
- 10,192
Pasningstakster
- Vuggestue 0-2 år
- 4.215 kr./md.
- Dagpleje 0-2 år
- 3.157 kr./md.
- Børnehave 3-5 år
- 2.107 kr./md.
- Antal folkeskoler
- 15
- Gns. klassekvotient
- 19,3
- Sagsnr.
- 77606254
- Boligareal
- 118 m²
- Vægtet areal
- 131 m²
- Rum/værelser
- 4/3
- Grundareal
- 1.458 m²
- Antal etager
- 1
- Byggeår
- 1975
- Energimærke
- C
- Liggetid
- 78 dage
Oplysninger

Troværdig og tillidsvækkende.
Vi samler på tilfredse kunder! Alt får mere værdi når man gør sig umage - Vi gør vores bedste for at hjælpe dig godt videre, når du handler bolig.

