
Fremvisning
Book en fremvisning
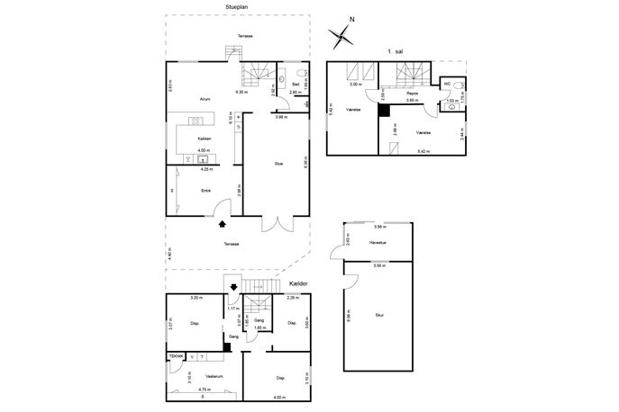
Øster Alle 179670 Løgstør
Villa
rum3/2 rum
m²140 m²
C
2.395.000 kr.



Har du spørgsmål om boligen eller ønsker du at komme forbi til en uforpligtende snak? Så kontakt os her

Har du spørgsmål om boligen eller ønsker du at komme forbi til en uforpligtende snak? Så kontakt os her
