Brandvænget 25
Solgt


Attraktiv beliggenhed tæt på station, Hedeland og Nærheden
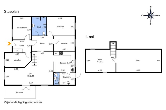
Velkommen til Brandvænget 25 - et skønt og karakteristisk rækkehus i det yderst populære område omkring Stenmøllen i Hedehusene.Her får du 124 m² veldisponeret bolig i to plan med et dejligt lysindfald og en varm atmosfære.
Boligen byder på fire gode soveværelser, to badeværelser samt et lyst og indbydende køkken/alrum i åben forbindelse med stuen. Her er der tænkt på komfort - både i køkkenet og i de to badeværelser er der behagelig gulvvarme, som gør hverdagen lidt mere luksuriøs. Køkkenet har et naturligt samlingspunkt, og der er et behageligt flow mellem rummene, som gør huset både funktionelt og hyggeligt.
Fra stuen er der direkte udgang til en solrig stenterrasse og en lille, nem have - perfekt til sommerdage med familie og venner.
Fra opholdsstuen fører en trappe op til et udnyttet loftsrum, der fungerer som et disponibelt rum med mange muligheder - fx kontor, legerum eller ekstra opholdsrum.
Beliggenheden er noget helt særligt: Du bor i et roligt og attraktivt kvarter tæt på station, institutioner, indkøb og den moderne bydel Nærheden. Samtidig har du Hedeland som din grønne baghave med natur, søer og oplevelser lige uden for døren.
Et perfekt hjem for familien, der ønsker både komfort, nærhed, natur og charme.
Fakta om Høje-Taastrup (59.059 indbyggere)
- Kommuneskat
- 24,6%
- Landsgennemsnit
- 25,4%
- Grundskyldspromille
- 6,3
- Landsgennemsnit
- 10,191
Pasningstakster
- Vuggestue 0-2 år
- 3.833 kr./md.
- Dagpleje 0-2 år
- 3.187 kr./md.
- Børnehave 3-5 år
- 2.156 kr./md.
- Antal folkeskoler
- 9
- Gns. klassekvotient
- 22,3
- Sagsnr.
- 26404239
- Boligareal
- 124 m²
- Vægtet areal
- 127 m²
- Rum/værelser
- 5/4
- Grundareal
- 335 m²
- Antal etager
- 1
- Byggeår
- 1982
- Energimærke
- E
- Liggetid
- 6 dage
Oplysninger

National boligmæglervirksomhed med lokalt kendskab
Vi er Danmarks største mæglervirksomhed og kender både lokale og nationale markedsforhold. Derfor kan jeg hjælpe dig med at realisere dine boligdrømme. Kontakt mig for en uforpligtende snak.
Andreas Elkjær
Indehaver, afdelingsleder, ejendomsmægler, MDE, køberrådgiver m/Tryghedsmærke

