Fremvisning
Book en fremvisning

Rønnevangen 1888471 Sabro

Rækkehus

4/3 rum
108 m²
A2015
2.598.000 kr.

Fakta om boligen

Sagsnr.
82205040
Boligareal
108 m²
Vægtet areal
108 m²
Rum/værelser
4/3
Grundareal
119 m²
Antal etager
2
Byggeår
2013
Energimærke
A2015
Liggetid
213 dage

Økonomi

Ejerudgifter pr. md.
1.969 kr.
Pris/m²
24.056 kr.
Pris
2.598.000 kr.
Prisudvikling
-4,00 %

Finansiering

Udbetaling
130.000 kr.
Brutto (ex. ejerudgifter)
14.013 kr.
Netto (ex. ejerudgifter)
11.351 kr.

Fakta om kommunen

Kommuneskat
24,5 %
Landsgennemsnit
25,4 %
Grundskyldspromille
6,0
Landsgennemsnit
10,2
Pasningstakster
Vuggestue (0-2 år)
3.969 kr./md.
Dagpleje (0-2 år)
3.323 kr./md
Børnehave (3-5 år)
2.186 kr./md.
Antal folkeskoler
45
Gns. klassekvotient
22,2

Familievenligt rækkehus i Sabro

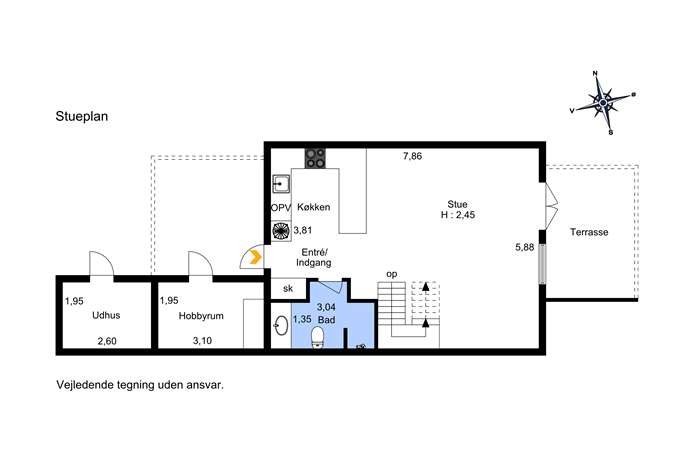
På Rønnevangen 188 finder du dette dejlige rækkehus, der kombinerer en praktisk planløsning med god plads til hele familien.

I stueplan bydes du velkommen i entréen, hvorfra der er adgang til et badeværelse samt det lyse køkken, der ligger i åben forbindelse til den rummelige stue. Her er der god plads til både spisebord og so­faar­ran­ge­ment – og udgang til en solrig terrasse med udestue, hvor dage of aftenener kan nydes i fulde drag.

Til boligen hører desuden et udhus og et praktisk hobbyrum, som giver ekstra opbevarings- og an­ven­del­ses­mu­lig­he­der. På førstesalen finder du endnu et badeværelse, et stort soveværelse med walk-in closet samt udgang til egen altan. Fra altanen er der en flot udsigt og med dens rummelighed er der plads til diverse udemøbler.

Førstesalen rummer derudover to gode værelser, der egner sig perfekt til børn, kontor eller gæsteværelse.

Beliggenheden i Sabro giver en tryg og rolig hverdag tæt på indkøb, skole, dag­in­sti­tu­tio­ner og grønne områder – alt det, der gør hverdagen nem og overskuelig for børnefamilien.

Her får du et ind­flyt­nings­klart hjem med en gennemtænkt indretning og plads til at skabe gode minder.

Vil du vide mere om boligen?

Har du spørgsmål om boligen eller ønsker du at komme forbi til en uforpligtende snak? Så kontakt os her

Besøg butikken