Sjældent udbudt og nyt sommerhus på stor grund i Yderby Lyng.
Nyt moderne kvalitetshus fra 2025 - opført i bedste materialer nær vandet...
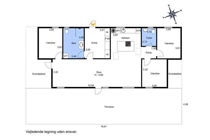
Vi har nu fornøjelsen af at byde velkommen til dette nye, moderne fritidshus på Oddenvej 263 - et gennemført lækkert hus på hele 122 kvm. Ejendommen fremstår ny og indflytningsklar - helt klar til sin nye ejer. Opvarmningen sker ved moderne luft-til-vand varmepumpe med gulvvarme i hele huset, og huset kan naturligvis benyttes hele året rundt. Til huset hører en skøn, stor træterrasse samt flere gode overdækninger.
Grunden er usædvanligt stor og giver masser af muligheder for at skabe det perfekte udeliv. Her er rigeligt med plads til eksempelvis sauna, udespa, shelter, bålplads eller boldspil - kun fantasien sætter grænser for, hvordan haven kan indrettes til både afslapning og hyggelige stunder med familie og venner.
Ejendommen er beliggende i 2. række til Oddenvejen, hvilket betyder, at man får glæde af en mere tilbagetrukket og rolig beliggenhed uden at gå på kompromis med nærheden til vandet. Når man står i baghaven, fornemmer man tydeligt, hvor privat og ugeneret grunden er - en oplevelse, som skal mærkes på stedet. Fra grunden er der blot få minutters gang til det lækre badevand i Sejerøbugten.
Indenfor fornemmer man straks den hyggelige atmosfære, som huset emmer af. Hjertet i huset er uden tvivl den skønne stue i åben forbindelse med det lækre køkken, der byder på mange flotte detaljer samt ovenlysvinduer, hvor lyset strømmer ind. Stuen er veldisponeret og rummer både spisestue og plads til sofahygge. Gennem de store vinduespartier kan grunden nydes på alle årstider, og fra stuen er der flere udgange til terrassen - her er der basis for solbadning og hvidvin, men også for spil og hygge.
Huset rummer desuden hele tre fine soveværelser samt en hems. Der er et flot badeværelse i elegant stil med separat bruseafsnit og vaskesøjle - og herudover et ekstra gæstetoilet, som gør huset særdeles funktionelt til både familie og gæster. Den rummelige entré har god plads til opbevaring. Huset fremstår lyst og indbydende med lofter til kip og smukke mørke gulve, som giver karakter og varme til indretningen.
I gåafstand finder man det meget populære bageri Tïr, mens der blot er en frisk cykeltur eller få minutters kørsel i bil til den hyggelige Havneby. Her finder man en stor og velassorteret SuperBrugs, byggemarked, Havnebyens kaffebar, en hyggelig havn med flere gode spisesteder og den populære fiskehandel. Skal der handles i gårdbutik, kan vi anbefale et besøg på Lønnebjerg, der producerer og sælger de flotte "Kastanjelys" samt andre lækre ting til sommerhuset.