
Åbent hus (kræver tilmelding)
30. april kl 12.00 - 17.00
Trelde Næsvej 181A, Trelde Sande7000 Fredericia
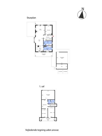
Villa
rum5/4 rum
m²151 m²
D
4.495.000 kr.



Har du spørgsmål om boligen eller ønsker du at komme forbi til en uforpligtende snak? Så kontakt os her

Har du spørgsmål om boligen eller ønsker du at komme forbi til en uforpligtende snak? Så kontakt os her
