
Åbent hus (kræver tilmelding)
11. maj kl 11.00 - 17.00
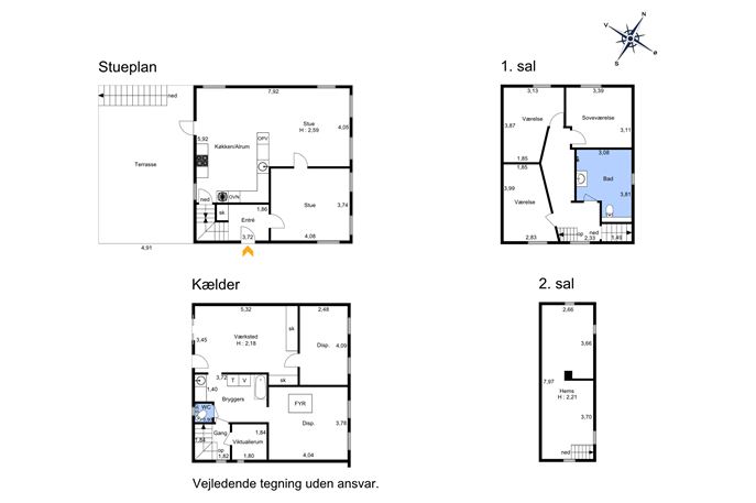
Låsbyvej 47, Forlev8660 Skanderborg
Villa
rum6/4 rum
m²145 m²
F
1.775.000 kr.



Har du spørgsmål om boligen eller ønsker du at komme forbi til en uforpligtende snak? Så kontakt os her

Har du spørgsmål om boligen eller ønsker du at komme forbi til en uforpligtende snak? Så kontakt os her
