Bundgårdsvej 10
Solgt


Flot renoveret villa med kort afstand til midtbyen
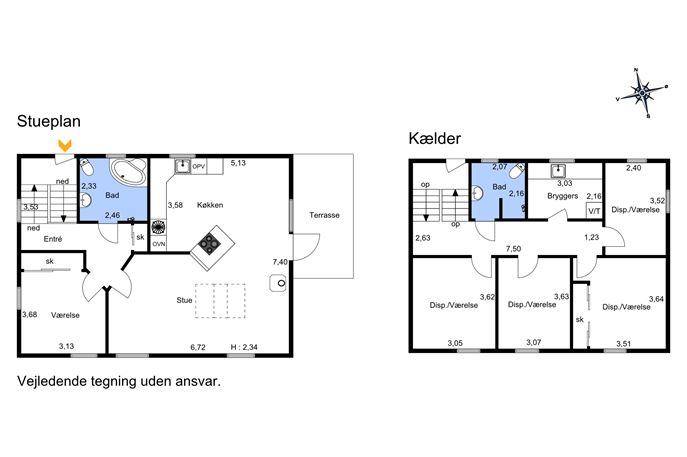
Spændende villa med mange muligheder, godt beliggende med kort afstand til skole og Brønderslev by-centrum med specialbutikker, restauranter mm.Villaen er overalt nænsomt istandsat i rigtig god kvalitet og fremstår med flot og moderne indretning. Villaen har i alt 180 m² etagemeter med 90 m² i stueetagen samt super kælderplan på 90 m².
Boligindretning: Pæn entre med garderobeplads, gang med faste skabe, værelse med stor skabsvæg, pænt badeværelse med badekar og bruseniche, flot Svanekøkken i åben forbindelse med dejlig lys opholdsstue - herfra er der udgang til hyggelig træ-terrasse og haven.
Tillige et super kælderplan der er flot renoveret i 2011 og fremstår i virkelig god stand. Kælderen er fugtsikret med omfangsdræn, fugtmembran/isolering samt højvandluk. Fremstår med gulvvarme overalt og har følgende indretning: 3 gode værelser og stort soveværelse, lækkert bryggers samt flot badeværelse. Kælderen er ikke godkendt som boligareal, men er indrettet og anvendes i dag som boligrum da kælderen fremstår i boligstandard.
Tillige carport og stort dejligt værkstedsrum på i alt 55 m², bygningen er ombygget og med nyt paptag fra 2024. Tillige flot skur i baghave samt drivhus.
Dejlig grund på 800 m² med flot anlagt have. Der er udført kloakseparering på grunden.
Tekniske oplysninger:
Tag: Betontagsten fra 2006
Ydervægge: Gule mursten
Vinduer: Trævinduer - i stueplan fra 2007 samt vinduer i kælderplan fra 2011.
Varmeanlæg: Fjernvarme og brændeovn fra 2008 (CE-mærket og skal derfor ikke udskiftes)
Faktisk fjernvarmeforbrug 2024: 8.980 kr.
Oplysninger om Brønderslev Kommune: se - www.bronderslev.dk
Fakta om Brønderslev (36.706 indbyggere)
- Kommuneskat
- 26,3%
- Landsgennemsnit
- 25,4%
- Grundskyldspromille
- 17,1
- Landsgennemsnit
- 10,192
Pasningstakster
- Vuggestue 0-2 år
- 3.384 kr./md.
- Dagpleje 0-2 år
- 2.960 kr./md.
- Børnehave 3-5 år
- 1.906 kr./md.
- Antal folkeskoler
- 2
- Gns. klassekvotient
- 19,3
- Sagsnr.
- 97003997
- Boligareal
- 90 m²
- Kælder
- 90 m²
- Vægtet areal
- 144 m²
- Rum/værelser
- 6/5
- Grundareal
- 800 m²
- Antal etager
- 1
- Byggeår
- 1964
- Energimærke
- B
- Liggetid
- 66 dage
Oplysninger

Hjemmet er rammen om livet
Vi ved, det er vigtigt med hjemlige rammer. Derfor gør vi os umage hver eneste dag. For os handler det nemlig meget mere om mennesker end om mursten.

